0
Skip to Content
Isabel Strauss
Home
About
Work
CV
Isabel Strauss
Home
About
Work
CV
Home
About
Work
CV
Permeable paver construction in Boxville Marketplace for David Brown's "18 of a Kind" through The Available City. Project with Adam Maserow. 2025.

Permeable paver construction in Boxville Marketplace for David Brown's "18 of a Kind" through The Available City. Project with Adam Maserow. 2025.

Boxville_1.JPG
Boxville_3.JPG
Phasing strategy with Adam Maserow for Boxville Marketplace. Render by Image on the Left (Glen Marquardt).

Phasing strategy with Adam Maserow for Boxville Marketplace. Render by Image on the Left (Glen Marquardt).

Conceptual drawing with Adam Maserow for Boxville Marketplace, 2025.

Conceptual drawing with Adam Maserow for Boxville Marketplace, 2025.

25_0715_FLYHALF_Boxville_Concept Drawing.jpg
Conceptual drawing with Adam Maserow for Boxville Marketplace, 2025.

Conceptual drawing with Adam Maserow for Boxville Marketplace, 2025.

Inaugural exhibition at MAS Context for David Brown's "18 of a Kind" through The Available City. Ribbon drawing for Boxville by FLYHALF (Adam Maserow & Isabel Strauss).

Inaugural exhibition at MAS Context for David Brown's "18 of a Kind" through The Available City. Ribbon drawing for Boxville by FLYHALF (Adam Maserow & Isabel Strauss).

FLYHALF for BOXVILLE 2.jpg
Essay in "Making Home" edited by Alexandra Cunningham Cameron, Christina L. De León and Michelle Joan Wilkinson.

Essay in "Making Home" edited by Alexandra Cunningham Cameron, Christina L. De León and Michelle Joan Wilkinson.

“Derrick Bell’s Interest Convergence Theory,” in Margin & Text, Princeton Architectural Press .

“Derrick Bell’s Interest Convergence Theory,” in Margin & Text, Princeton Architectural Press .

Finalist entry for Rotch Travelling Scholarship 2024. View fullsize

Finalist entry for Rotch Travelling Scholarship 2024.

IStrauss_Rotch Final_2024_Page_05.jpg View fullsize
IStrauss_Rotch Final_2024_Page_08.jpg View fullsize
IStrauss_Rotch Final_2024_Page_06.jpg View fullsize
Finalist entry for Rotch Travelling Scholarship 2024. View fullsize

Finalist entry for Rotch Travelling Scholarship 2024.

IStrauss_2024RotchPrelim_Page_2.jpg View fullsize
IStrauss_2024RotchPrelim_Page_4.jpg View fullsize
"Sans Spectacle" for Architectural Record, 2023

"Sans Spectacle" for Architectural Record, 2023

Case Study House, Chicago, with Riff Studio, 2023. Renders by Image on the Left (Glen Marquardt).  Supported by the Graham Foundation for Advanced Studies in the Fine Arts.

Case Study House, Chicago, with Riff Studio, 2023. Renders by Image on the Left (Glen Marquardt). Supported by the Graham Foundation for Advanced Studies in the Fine Arts.

2023.06.03_RIFF_BACK_100P_FINAL.png
2023.06.09_RIFF_ELEVATION_100P_FINAL.png
2023.06.07_RIFF_LIVING-ROOM_100P_FINAL.png
2023.06.03_RIFF_LOUNGE_100P_FINAL.png
2023.06.05_RIFF_KITCHEN_100P_FINAL.png
Vencie Biennale_Poster.jpg
A Window (Detail) From the Future, with Riff Studio, 2023. La Biennale di Venezia, Venice, Italy.

A Window (Detail) From the Future, with Riff Studio, 2023. La Biennale di Venezia, Venice, Italy.

2023 Venice_Riff Studio_3.jpg
2023 Venice_Riff Studio_4.jpg
2023 Venice_Riff Studio_1.jpg
2023 Venice_Riff Studio_5.JPG
Hyde Park Living Room, 2024 View fullsize

Hyde Park Living Room, 2024

Hyde Park Kitchen, 2023 View fullsize

Hyde Park Kitchen, 2023

Mecca Tile. Permanent collection of the National Museum of African American History and Culture. Object 2022.2.

Mecca Tile. Permanent collection of the National Museum of African American History and Culture. Object 2022.2.

After_Mecca by GBrooks.jpg View fullsize
Pilgrim Baptist Church 2024.JPG View fullsize
AOR RFP_Page_01.jpg View fullsize
Strauss_Bronzeville.JPEG View fullsize
Strauss_Bronzeville Rowhouses.JPEG View fullsize
Strauss rowhouse diagram.jpg View fullsize
concept for the "family village" / collage made from adler & sullivan row house plan View fullsize

concept for the "family village" / collage made from adler & sullivan row house plan

Strauss_Richard Nickel Drawing.jpg View fullsize
chicago land inventory map View fullsize

chicago land inventory map

"Up from the Past: Housing as Reparations on Chicago's South Side" at the Graham Foundation Madlener House, 2021. Photographs courtesy of Nathan Keay.

"Up from the Past: Housing as Reparations on Chicago's South Side" at the Graham Foundation Madlener House, 2021. Photographs courtesy of Nathan Keay.

"Family Village" front elevation, 2020 View fullsize

"Family Village" front elevation, 2020

Strauss_Bronzeville_Elevation.jpg View fullsize
Strauss_Bronzeville_Section.jpg View fullsize
"Family Village" plan View fullsize

"Family Village" plan

Strauss_Up+from+the+Past_GF_Courtesy+of+Nathan+Keay+2.jpg
GF_CAB_Nathan Keay_2.jpg View fullsize
GF_CAB_Nathan Keay_4.jpg View fullsize
GF_CAB_Nathan Keay_3.jpg View fullsize
Plan. 12 x 12 x ½ in.

ChromaLuxe Aluminum photo panel, MDF
Including elements from Mickalene Thomas, Landscape Majestic, 2010; Njideka Akunyili Crosby, Something Split and New, 2013 and Thread, 2012; Richard Nickel, Louis H. Sullivan’s Henry Babson View fullsize

Plan. 12 x 12 x ½ in. ChromaLuxe Aluminum photo panel, MDF Including elements from Mickalene Thomas, Landscape Majestic, 2010; Njideka Akunyili Crosby, Something Split and New, 2013 and Thread, 2012; Richard Nickel, Louis H. Sullivan’s Henry Babson Residence, 230 N. Longcommon Road, Riverside, Illinois, designed or built ca. 1908–09, demolished 1960; Photographer unknown, Grandma Ida on Martha’s Vineyard, date unknown; Paul Strauss, Daniel with bicycle, date unknown. Collection of the National Museum of African American History and Culture. Object 2024.121.

Pos
12 x 15.4 x ½ in.
ChromaLuxe Aluminum photo panel, MDF
Including elements from Mickalene Thomas, Interior: Striped Foyer, 2011; Richard Nickel, Adler & Sullivan’s Morris Selz Residence, 1717
S. Michigan Avenue, Chicago, Illinois, designed or buil View fullsize

Pos 12 x 15.4 x ½ in. ChromaLuxe Aluminum photo panel, MDF Including elements from Mickalene Thomas, Interior: Striped Foyer, 2011; Richard Nickel, Adler & Sullivan’s Morris Selz Residence, 1717 S. Michigan Avenue, Chicago, Illinois, designed or built 1883, demolished 1967; Selfies, Isabel, 2019 and Marlies, 2017. Collection of the National Museum of African American History and Culture. Object 2024.121.

Mirror
12 x 15.1 x ½ in.
ChromaLuxe Aluminum photo panel, MDF
Including elements from Nick Cave, Architectural Forest, 2011;
Mickalene Thomas, Lounging, Standing, Looking, 2012 and Clarivel #6, 2019; Lorna Simpson, Earth & Sky #30, 2016; Sadie Barnet View fullsize

Mirror 12 x 15.1 x ½ in. ChromaLuxe Aluminum photo panel, MDF Including elements from Nick Cave, Architectural Forest, 2011; Mickalene Thomas, Lounging, Standing, Looking, 2012 and Clarivel #6, 2019; Lorna Simpson, Earth & Sky #30, 2016; Sadie Barnette, The New Eagle Creek Saloon, 2019; Romare Bearden, Jazz II Deluxe, 1980; Deborah Roberts, Let Them Be Children, 2018; Norman Rockwell, The Problem We All Live With, 1964; Richard Nickel, Frank Lloyd Wright and Louis Sullivan’s James Charnley Residence, 1365 N Astor Street, Chicago, Illinois, designed or built 1891–92. Collection of the National Museum of African American History and Culture. Object 2024.121.

Perch
12 x 15.6 x ½ in.
ChromaLuxe Aluminum photo panel, MDF
Including elements from Bisa Butler, The Tea, 2017, Four Little Girls, September 15, 1963, 2018, and Mannish Boy, 2018; Kerry James
Marshall, 7am Sunday Morning, 2003; Richard Nickel, Louis View fullsize

Perch 12 x 15.6 x ½ in. ChromaLuxe Aluminum photo panel, MDF Including elements from Bisa Butler, The Tea, 2017, Four Little Girls, September 15, 1963, 2018, and Mannish Boy, 2018; Kerry James Marshall, 7am Sunday Morning, 2003; Richard Nickel, Louis H. Sullivan’s Henry Babson Residence, 230 N. Longcommon Road, Riverside, Illinois, designed or built ca. 1908–09, demolished 1960; Richard Nickel, Crombie Taylor’s Grant Place Apartments, 550 W. Grant Place, Chicago, Illinois, designed or built 1961, demolished 2007. Collection of the National Museum of African American History and Culture. Object 2024.121.

Gaze. 12 x 15 x ½ in. ChromaLuxe Aluminum photo panel, MDF. Including elements from Howardena Pindell, Untitled #51, 2010; Lorna Simpson, Earth & Sky, #30, 2016; Richard Nickel, Frank Lloyd Wright’s Avery Coonley Residence, 300 Scottswood Road, River View fullsize

Gaze. 12 x 15 x ½ in. ChromaLuxe Aluminum photo panel, MDF. Including elements from Howardena Pindell, Untitled #51, 2010; Lorna Simpson, Earth & Sky, #30, 2016; Richard Nickel, Frank Lloyd Wright’s Avery Coonley Residence, 300 Scottswood Road, Riverside, Illinois, designed or built 1907.

Void. 15.2 x 12 x ½ in. ChromaLuxe Aluminum photo panel, MDF. Including elements from Mark Bradford, Helter Skelter I, 2007; Richard
Nickel, Adler & Sullivan’s Martin Barbe Residence, 3157 S. Prairie Avenue, Chicago, Illinois, designed or built 1884, View fullsize

Void. 15.2 x 12 x ½ in. ChromaLuxe Aluminum photo panel, MDF. Including elements from Mark Bradford, Helter Skelter I, 2007; Richard Nickel, Adler & Sullivan’s Martin Barbe Residence, 3157 S. Prairie Avenue, Chicago, Illinois, designed or built 1884, demolished 1963; Richard Nickel, Louis H. Sullivan’s Carson Pirie Scott and Company Store, 1 S. State Street, designed or built 1899–1903.

Spill. 12 x 12 x ½ in. ChromaLuxe Aluminum photo panel, MDF. Including elements from Kerry James Marshall, School of Beauty,
School of Culture, 2012; Mark Bradford, The World is Flat, 2007; Richard Nickel, Adler & Sullivan’s Cottage and Outbuildings, View fullsize

Spill. 12 x 12 x ½ in. ChromaLuxe Aluminum photo panel, MDF. Including elements from Kerry James Marshall, School of Beauty, School of Culture, 2012; Mark Bradford, The World is Flat, 2007; Richard Nickel, Adler & Sullivan’s Cottage and Outbuildings, 100 Holcomb Boulevard, Ocean Springs, Mississippi, designed or built 1890, destroyed 2005; Richard Nickel, Frank Lloyd Wright’s Lake Park Project House, 4575 S. Lake Park Avenue, Chicago, Illinois, designed or built 1891–92, demolished 1970.

Study. 15.2 x 12 x ½ in. ChromaLuxe Aluminum photo panel, MDF. Including elements from Nick Cave, Soundsuit, 2008; Theaster Gates, Ground Rules, 2015 and Stony Island Arts Bank, designed or built
2015; Ebony G. Patterson, …buried again to carry on gr View fullsize

Study. 15.2 x 12 x ½ in. ChromaLuxe Aluminum photo panel, MDF. Including elements from Nick Cave, Soundsuit, 2008; Theaster Gates, Ground Rules, 2015 and Stony Island Arts Bank, designed or built 2015; Ebony G. Patterson, …buried again to carry on growing…, 2015; Richard Nickel, Frank Lloyd Wright and Louis Sullivan’s Charnley Residence, 1365 N. Astor Street, Chicago, Illinois, designed or built 1891–92.

Portal. 12 x 15.1 x ½ in. ChromaLuxe Aluminum photo panel, MDF Including elements from Kehinde Wiley, Barack Hussein Obama, born
4 Aug 1961, 2018; Nick Cave, Tondo, 2018; Richard Nickel, Adler & Sullivan’s Samuel Stern Residence, Adler & Sullivan, 29 View fullsize

Portal. 12 x 15.1 x ½ in. ChromaLuxe Aluminum photo panel, MDF Including elements from Kehinde Wiley, Barack Hussein Obama, born 4 Aug 1961, 2018; Nick Cave, Tondo, 2018; Richard Nickel, Adler & Sullivan’s Samuel Stern Residence, Adler & Sullivan, 2963 S. Prairie Avenue, Chicago, Illinois, designed or built 1885, demolished 1959; Russell Lee, Adler & Sullivan’s Anshe Ma'ariv Synagogue (Pilgrim Baptist Church), 3301 S. Indiana Avenue, designed or built 1890–91.

Wander. 12 x 12 x ½ in. ChromaLuxe Aluminum photo panel, MDF. Including elements from Mark Bradford, Pickett's Charge, 2017; Deborah Roberts, Either by the hawk or by the dove; I am the seed
and the bloom; Sewed together, 2018; Lorna Simpson, Speechl View fullsize

Wander. 12 x 12 x ½ in. ChromaLuxe Aluminum photo panel, MDF. Including elements from Mark Bradford, Pickett's Charge, 2017; Deborah Roberts, Either by the hawk or by the dove; I am the seed and the bloom; Sewed together, 2018; Lorna Simpson, Speechless, 2017; Ebony G. Patterson, …to dig between the cuts, beneath the leaves, below the soil…, 2019; Richard Nickel, Adler & Sullivan’s Martin Barbe Residence, 3157 S. Prairie Avenue, Chicago, Illinois, designed or built 1884, demolished 1963.

Strauss_Up from the Past_GF_Courtesy of Nathan Keay.jpg
Panoramas courtesy of David Travis. View fullsize

Panoramas courtesy of David Travis.

David Travis_3.JPG View fullsize
David Travis_1.JPG View fullsize
David Travis_4.JPG View fullsize
"Architecture of Reparations" at Bronzville Artist Lofts for the 2021 Chicago Architecture Biennial, featuring work by Kofi Akakpo, Rekha Auguste-Nelson, William Boles, Calvin Boyd, Sean Canty, Darien Carr, Amir Denzel Hall, DJ Eway, Evalyn Gates, Ch View fullsize

"Architecture of Reparations" at Bronzville Artist Lofts for the 2021 Chicago Architecture Biennial, featuring work by Kofi Akakpo, Rekha Auguste-Nelson, William Boles, Calvin Boyd, Sean Canty, Darien Carr, Amir Denzel Hall, DJ Eway, Evalyn Gates, Christina Graydon, Brayton Gregory, Camila Guerrero, Daniel Haidermota, Whitney Hansley, Aryan Khalighy, Shen Li, Celeste Martore, Adam Maserow, Jaline McPherson, Marcus Mello, Zena Mengesha, Andrew M. Ngure, Omotara Oluwafemi, Naila Opiangah, Farnoosh Rafaie, and Gabriel Ramos.

"Architecture of Reparations" exhibited in "Heritage in Common" at Arc en Rêve Centre d'Architecture, 2022.

"Architecture of Reparations" exhibited in "Heritage in Common" at Arc en Rêve Centre d'Architecture, 2022.

CMMN_Isabel Strauss_2.jpg View fullsize
CMMN_Isabel Strauss_3.jpg View fullsize
"Up from the Past: Housing as Reparations on Chicago's South Side" at EXPO Chicago for the Weinberg / Newton Gallery alongsideTonika Lewis Johnson. 2022. View fullsize

"Up from the Past: Housing as Reparations on Chicago's South Side" at EXPO Chicago for the Weinberg / Newton Gallery alongsideTonika Lewis Johnson. 2022.

"Up from the Past: Housing as Reparations on Chicago's South Side" for "Key Change" at the Weinberg / Newton Gallery, alongside Tonika Lewis Johnson, Gabrielle Garland, Maymay Jumsai, and Southside Home Movie Project. 2022.

"Up from the Past: Housing as Reparations on Chicago's South Side" for "Key Change" at the Weinberg / Newton Gallery, alongside Tonika Lewis Johnson, Gabrielle Garland, Maymay Jumsai, and Southside Home Movie Project. 2022.

2022-05-Key Chanege-16.jpg
2022-05-Key Chanege-13.jpg View fullsize
"Architecture of Reparations" at the Chicago Cultural Center, 2022

"Architecture of Reparations" at the Chicago Cultural Center, 2022

CAB_20220527_0005_2.jpg View fullsize
"Architecture of Reparations" at CAB STUDIO featuring work by Kofi Akakpo, Rekha Auguste-Nelson, William Boles, Calvin Boyd, Sean Canty, Darien Carr, Amir Denzel Hall, DJ Eway, Evalyn Gates, Christina Graydon, Brayton Gregory, Camila Guerrero, Daniel View fullsize

"Architecture of Reparations" at CAB STUDIO featuring work by Kofi Akakpo, Rekha Auguste-Nelson, William Boles, Calvin Boyd, Sean Canty, Darien Carr, Amir Denzel Hall, DJ Eway, Evalyn Gates, Christina Graydon, Brayton Gregory, Camila Guerrero, Daniel Haidermota, Whitney Hansley, Aryan Khalighy, Shen Li, Celeste Martore, Adam Maserow, Jaline McPherson, Marcus Mello, Zena Mengesha, Andrew M. Ngure, Omotara Oluwafemi, Naila Opiangah, Farnoosh Rafaie, and Gabriel Ramos.

CAB_20220527_0030.jpg View fullsize
CAB_20220527_0042.jpg View fullsize
CAB_20220527_0003.jpg View fullsize
IMG_0194.JPEG View fullsize
Contribution in Disc Journal 2 with Adam Maserow, edited by Ian Erickson. View fullsize

Contribution in Disc Journal 2 with Adam Maserow, edited by Ian Erickson.

Proposal for parking lot sculpture and seating, 2021. View fullsize

Proposal for parking lot sculpture and seating, 2021.

Still Life 4.png View fullsize
Still Life 3.jpg View fullsize
Still Life 2.jpg View fullsize
Cambridge Cohousing for Lütjens Padmanabhan Design Studio at Harvard GSD. Model making during COVID lockdown.
View fullsize

Cambridge Cohousing for Lütjens Padmanabhan Design Studio at Harvard GSD. Model making during COVID lockdown.

Geometry, Order, Mannerism_6.jpg View fullsize
facade precedent: Palazzo Strozzi, 1489 View fullsize

facade precedent: Palazzo Strozzi, 1489

Geometry, Order, Mannerism_18.JPG View fullsize
Geometry, Order, Mannerism_7.png View fullsize
Geometry, Order, Mannerism_8.jpg View fullsize
Geometry, Order, Mannerism_9.jpg View fullsize
Interior_4.jpg View fullsize
Interior_7.jpg View fullsize
process View fullsize

process

Geometry, Order, Mannerism_3.JPG View fullsize
Geometry, Order, Mannerism_4.JPG View fullsize
Geometry, Order, Mannerism_10.JPG View fullsize
Geometry, Order, Mannerism_17.JPEG View fullsize
Geometry, Order, Mannerism_13.JPEG View fullsize
Geometry, Order, Mannerism_18.JPEG View fullsize
Geometry, Order, Mannerism_15.jpg View fullsize
working model for Doug Fitch's design of "Peter and the Wolf"

working model for Doug Fitch's design of "Peter and the Wolf"

Highland Park Los Angeles Home.jpg View fullsize
Highland Park Worms Eye.png View fullsize
Strauss theater model 2.png View fullsize
Strauss Theater model 1.jpg View fullsize
Strauss concept theater 2.JPG View fullsize
strauss concept theater 1.JPG View fullsize
concept View fullsize

concept

Strauss_Concept Section.png View fullsize
Strauss_Process_2.png View fullsize
Strauss_Process.JPG View fullsize
Strauss_process_3.JPG View fullsize
Strauss_Threshold.jpg View fullsize
Strauss_scape_process.jpg View fullsize
Strauss_Uncanny_Facade.jpg View fullsize
Strauss_perspective_process.JPG View fullsize
post bat twin dings with Lauren Choi View fullsize

post bat twin dings with Lauren Choi

Post Bat Twin Ding w. Lauren Choi_6.png View fullsize
Post Bat Twin Ding w. Lauren Choi_1.png View fullsize
Post Bat Twin Ding w. Lauren Choi_5.png View fullsize
Post Bat Twin Ding w. Lauren Choi_4.png View fullsize
Post Bat Twin Ding w. Lauren Choi_3.png View fullsize
Post Bat Twin Ding w. Lauren Choi_2.png View fullsize
logo for LMM

logo for LMM

students in conversation with Miuccia Prada and Raf Simons View fullsize

students in conversation with Miuccia Prada and Raf Simons

IMG_0029.JPEG View fullsize
material mockup at SOM View fullsize

material mockup at SOM

Strauss_glaze 2.jpg View fullsize
Strauss_glaze.png View fullsize
Strauss_espresso_1.JPG View fullsize
Strauss_Espresso_2.JPG View fullsize
IMG_0681.JPG View fullsize
IMG_0927.JPG View fullsize
IMG_1520.JPG View fullsize
IMG_1578.JPG View fullsize
IMG_1983.JPG View fullsize
IMG_2003.JPG View fullsize
IMG_2006.JPG View fullsize
Photo Jul 16 2025, 6 28 21 PM.jpg View fullsize
IMG_3227.JPG View fullsize
IMG_3429.JPG View fullsize
Permeable paver construction in Boxville Marketplace for David Brown's "18 of a Kind" through The Available City. Project with Adam Maserow. 2025.
Boxville_1.JPG
Boxville_3.JPG
Phasing strategy with Adam Maserow for Boxville Marketplace. Render by Image on the Left (Glen Marquardt).
Conceptual drawing with Adam Maserow for Boxville Marketplace, 2025.
25_0715_FLYHALF_Boxville_Concept Drawing.jpg
Conceptual drawing with Adam Maserow for Boxville Marketplace, 2025.
Inaugural exhibition at MAS Context for David Brown's "18 of a Kind" through The Available City. Ribbon drawing for Boxville by FLYHALF (Adam Maserow & Isabel Strauss).
FLYHALF for BOXVILLE 2.jpg
Essay in "Making Home" edited by Alexandra Cunningham Cameron, Christina L. De León and Michelle Joan Wilkinson.
“Derrick Bell’s Interest Convergence Theory,” in Margin & Text, Princeton Architectural Press .
Finalist entry for Rotch Travelling Scholarship 2024.
IStrauss_Rotch Final_2024_Page_05.jpg
IStrauss_Rotch Final_2024_Page_08.jpg
IStrauss_Rotch Final_2024_Page_06.jpg
Finalist entry for Rotch Travelling Scholarship 2024.
IStrauss_2024RotchPrelim_Page_2.jpg
IStrauss_2024RotchPrelim_Page_4.jpg
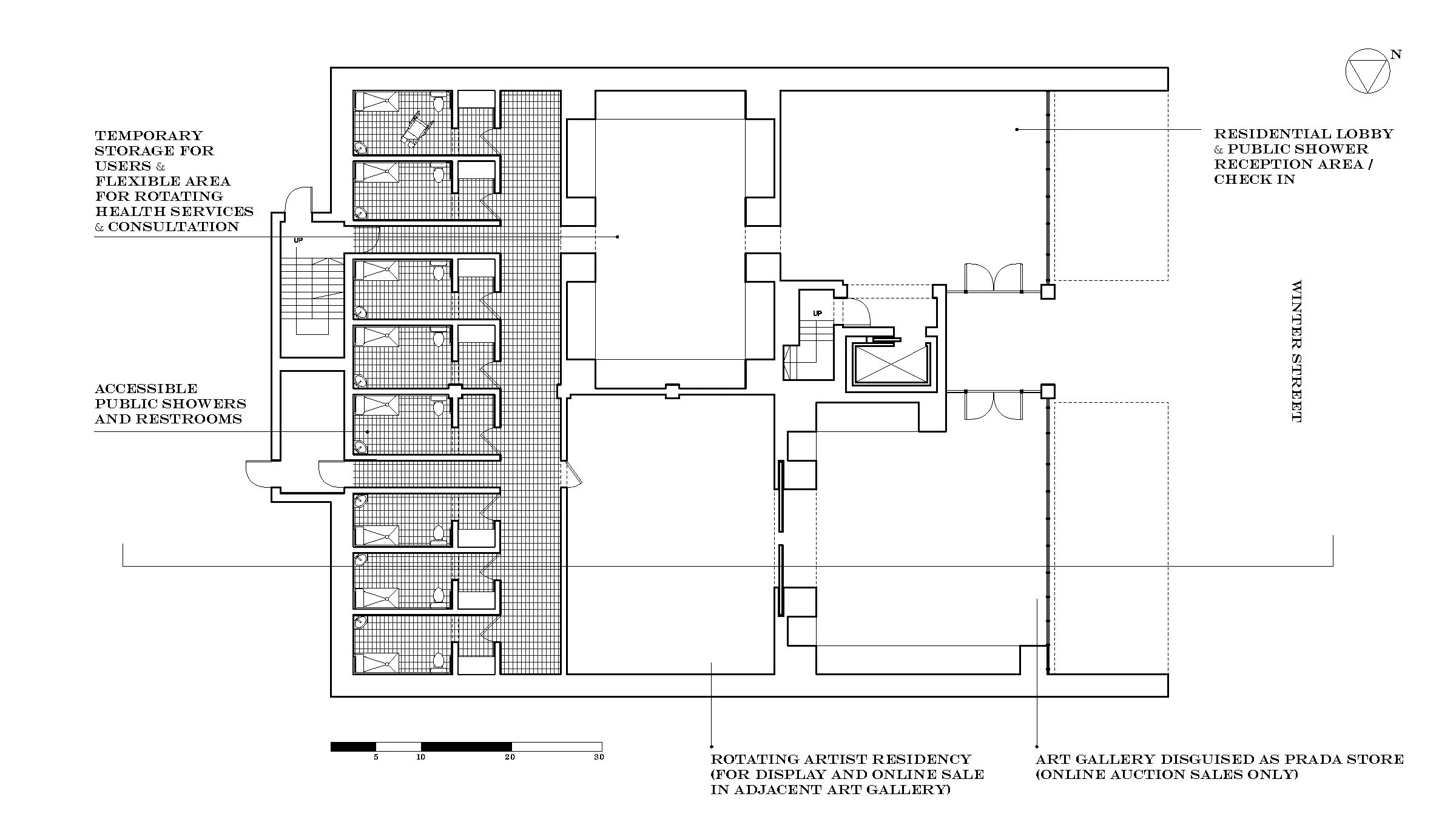
"Sans Spectacle" for Architectural Record, 2023
Case Study House, Chicago, with Riff Studio, 2023. Renders by Image on the Left (Glen Marquardt).  Supported by the Graham Foundation for Advanced Studies in the Fine Arts.
2023.06.03_RIFF_BACK_100P_FINAL.png
2023.06.09_RIFF_ELEVATION_100P_FINAL.png
2023.06.07_RIFF_LIVING-ROOM_100P_FINAL.png
2023.06.03_RIFF_LOUNGE_100P_FINAL.png
2023.06.05_RIFF_KITCHEN_100P_FINAL.png
Vencie Biennale_Poster.jpg
A Window (Detail) From the Future, with Riff Studio, 2023. La Biennale di Venezia, Venice, Italy.
2023 Venice_Riff Studio_3.jpg
2023 Venice_Riff Studio_4.jpg
2023 Venice_Riff Studio_1.jpg
2023 Venice_Riff Studio_5.JPG
Hyde Park Living Room, 2024
Hyde Park Kitchen, 2023
Mecca Tile. Permanent collection of the National Museum of African American History and Culture. Object 2022.2.
After_Mecca by GBrooks.jpg
Pilgrim Baptist Church 2024.JPG
AOR RFP_Page_01.jpg
Strauss_Bronzeville.JPEG
Strauss_Bronzeville Rowhouses.JPEG
Strauss rowhouse diagram.jpg
concept for the "family village" / collage made from adler & sullivan row house plan
Strauss_Richard Nickel Drawing.jpg
chicago land inventory map
"Up from the Past: Housing as Reparations on Chicago's South Side" at the Graham Foundation Madlener House, 2021. Photographs courtesy of Nathan Keay.
"Family Village" front elevation, 2020
Strauss_Bronzeville_Elevation.jpg
Strauss_Bronzeville_Section.jpg
"Family Village" plan
Strauss_Up+from+the+Past_GF_Courtesy+of+Nathan+Keay+2.jpg
GF_CAB_Nathan Keay_2.jpg
GF_CAB_Nathan Keay_4.jpg
GF_CAB_Nathan Keay_3.jpg
Plan. 12 x 12 x ½ in.

ChromaLuxe Aluminum photo panel, MDF
Including elements from Mickalene Thomas, Landscape Majestic, 2010; Njideka Akunyili Crosby, Something Split and New, 2013 and Thread, 2012; Richard Nickel, Louis H. Sullivan’s Henry Babson
Pos
12 x 15.4 x ½ in.
ChromaLuxe Aluminum photo panel, MDF
Including elements from Mickalene Thomas, Interior: Striped Foyer, 2011; Richard Nickel, Adler & Sullivan’s Morris Selz Residence, 1717
S. Michigan Avenue, Chicago, Illinois, designed or buil
Mirror
12 x 15.1 x ½ in.
ChromaLuxe Aluminum photo panel, MDF
Including elements from Nick Cave, Architectural Forest, 2011;
Mickalene Thomas, Lounging, Standing, Looking, 2012 and Clarivel #6, 2019; Lorna Simpson, Earth & Sky #30, 2016; Sadie Barnet
Perch
12 x 15.6 x ½ in.
ChromaLuxe Aluminum photo panel, MDF
Including elements from Bisa Butler, The Tea, 2017, Four Little Girls, September 15, 1963, 2018, and Mannish Boy, 2018; Kerry James
Marshall, 7am Sunday Morning, 2003; Richard Nickel, Louis
Gaze. 12 x 15 x ½ in. ChromaLuxe Aluminum photo panel, MDF. Including elements from Howardena Pindell, Untitled #51, 2010; Lorna Simpson, Earth & Sky, #30, 2016; Richard Nickel, Frank Lloyd Wright’s Avery Coonley Residence, 300 Scottswood Road, River
Void. 15.2 x 12 x ½ in. ChromaLuxe Aluminum photo panel, MDF. Including elements from Mark Bradford, Helter Skelter I, 2007; Richard
Nickel, Adler & Sullivan’s Martin Barbe Residence, 3157 S. Prairie Avenue, Chicago, Illinois, designed or built 1884,
Spill. 12 x 12 x ½ in. ChromaLuxe Aluminum photo panel, MDF. Including elements from Kerry James Marshall, School of Beauty,
School of Culture, 2012; Mark Bradford, The World is Flat, 2007; Richard Nickel, Adler & Sullivan’s Cottage and Outbuildings,
Study. 15.2 x 12 x ½ in. ChromaLuxe Aluminum photo panel, MDF. Including elements from Nick Cave, Soundsuit, 2008; Theaster Gates, Ground Rules, 2015 and Stony Island Arts Bank, designed or built
2015; Ebony G. Patterson, …buried again to carry on gr
Portal. 12 x 15.1 x ½ in. ChromaLuxe Aluminum photo panel, MDF Including elements from Kehinde Wiley, Barack Hussein Obama, born
4 Aug 1961, 2018; Nick Cave, Tondo, 2018; Richard Nickel, Adler & Sullivan’s Samuel Stern Residence, Adler & Sullivan, 29
Wander. 12 x 12 x ½ in. ChromaLuxe Aluminum photo panel, MDF. Including elements from Mark Bradford, Pickett's Charge, 2017; Deborah Roberts, Either by the hawk or by the dove; I am the seed
and the bloom; Sewed together, 2018; Lorna Simpson, Speechl
Strauss_Up from the Past_GF_Courtesy of Nathan Keay.jpg
Panoramas courtesy of David Travis.
David Travis_3.JPG
David Travis_1.JPG
David Travis_4.JPG
"Architecture of Reparations" at Bronzville Artist Lofts for the 2021 Chicago Architecture Biennial, featuring work by Kofi Akakpo, Rekha Auguste-Nelson, William Boles, Calvin Boyd, Sean Canty, Darien Carr, Amir Denzel Hall, DJ Eway, Evalyn Gates, Ch
"Architecture of Reparations" exhibited in "Heritage in Common" at Arc en Rêve Centre d'Architecture, 2022.
CMMN_Isabel Strauss_2.jpg
CMMN_Isabel Strauss_3.jpg
"Up from the Past: Housing as Reparations on Chicago's South Side" at EXPO Chicago for the Weinberg / Newton Gallery alongsideTonika Lewis Johnson. 2022.
"Up from the Past: Housing as Reparations on Chicago's South Side" for "Key Change" at the Weinberg / Newton Gallery, alongside Tonika Lewis Johnson, Gabrielle Garland, Maymay Jumsai, and Southside Home Movie Project. 2022.
2022-05-Key Chanege-16.jpg
2022-05-Key Chanege-13.jpg
"Architecture of Reparations" at the Chicago Cultural Center, 2022
CAB_20220527_0005_2.jpg
"Architecture of Reparations" at CAB STUDIO featuring work by Kofi Akakpo, Rekha Auguste-Nelson, William Boles, Calvin Boyd, Sean Canty, Darien Carr, Amir Denzel Hall, DJ Eway, Evalyn Gates, Christina Graydon, Brayton Gregory, Camila Guerrero, Daniel
CAB_20220527_0030.jpg
CAB_20220527_0042.jpg
CAB_20220527_0003.jpg
IMG_0194.JPEG
Contribution in Disc Journal 2 with Adam Maserow, edited by Ian Erickson.
Proposal for parking lot sculpture and seating, 2021.
Still Life 4.png
Still Life 3.jpg
Still Life 2.jpg
Cambridge Cohousing for Lütjens Padmanabhan Design Studio at Harvard GSD. Model making during COVID lockdown.
Geometry, Order, Mannerism_6.jpg
facade precedent: Palazzo Strozzi, 1489
Geometry, Order, Mannerism_18.JPG
Geometry, Order, Mannerism_7.png
Geometry, Order, Mannerism_8.jpg
Geometry, Order, Mannerism_9.jpg
Interior_4.jpg
Interior_7.jpg
process
Geometry, Order, Mannerism_3.JPG
Geometry, Order, Mannerism_4.JPG
Geometry, Order, Mannerism_10.JPG
Geometry, Order, Mannerism_17.JPEG
Geometry, Order, Mannerism_13.JPEG
Geometry, Order, Mannerism_18.JPEG
Geometry, Order, Mannerism_15.jpg
working model for Doug Fitch's design of "Peter and the Wolf"
Highland Park Los Angeles Home.jpg
Highland Park Worms Eye.png
Strauss theater model 2.png
Strauss Theater model 1.jpg
Strauss concept theater 2.JPG
strauss concept theater 1.JPG
concept
Strauss_Concept Section.png
Strauss_Process_2.png
Strauss_Process.JPG
Strauss_process_3.JPG
Strauss_Threshold.jpg
Strauss_scape_process.jpg
Strauss_Uncanny_Facade.jpg
Strauss_perspective_process.JPG
post bat twin dings with Lauren Choi
Post Bat Twin Ding w. Lauren Choi_6.png
Post Bat Twin Ding w. Lauren Choi_1.png
Post Bat Twin Ding w. Lauren Choi_5.png
Post Bat Twin Ding w. Lauren Choi_4.png
Post Bat Twin Ding w. Lauren Choi_3.png
Post Bat Twin Ding w. Lauren Choi_2.png
logo for LMM
students in conversation with Miuccia Prada and Raf Simons
IMG_0029.JPEG
material mockup at SOM
Strauss_glaze 2.jpg
Strauss_glaze.png
Strauss_espresso_1.JPG
Strauss_Espresso_2.JPG
IMG_0681.JPG
IMG_0927.JPG
IMG_1520.JPG
IMG_1578.JPG
IMG_1983.JPG
IMG_2003.JPG
IMG_2006.JPG
Photo Jul 16 2025, 6 28 21 PM.jpg
IMG_3227.JPG
IMG_3429.JPG